Cookies op Dekkers de Groot Makelaardij

Fijn dat je verder wilt lezen. We gebruiken cookies om de website naar behoren te laten werken, om functies voor social media te bieden en om onze website te analyseren. Dit gebeurt anoniem. Je gaat akkoord met onze cookies als je onze website blijft gebruiken. Op onze website kun je ook ons privacybeleid vinden.

Aert van der Goesstraat 6 I Verhuurd

2582 AK Den Haag - Statenkwartier

Omschrijving

GORGEOUS, RECENTLY RENOVATED 3-ROOM APPARTEMENT ON THE FIRST FLOOR WITH LUXURIOUS KITCHEN, BATHROOM.

THE APARTMENT IS LOCATED IN THE POPULAR STATENKWARTIER. AMIDST THE SHOPS A WIDE RANGE OF SHOPS, BARS AND RESTAURANTS AT THE FREDERIK HENDRIKLAAN AND AERT VAN DER GOESSTRAAT. SITUATED NEAR PUBLIC TRANSPORT, SCHEVENINGEN, EMBASSIES AND INTERNATIONAL ORGANISATIONS AS EUROPOL, OPCW AND ICTY.

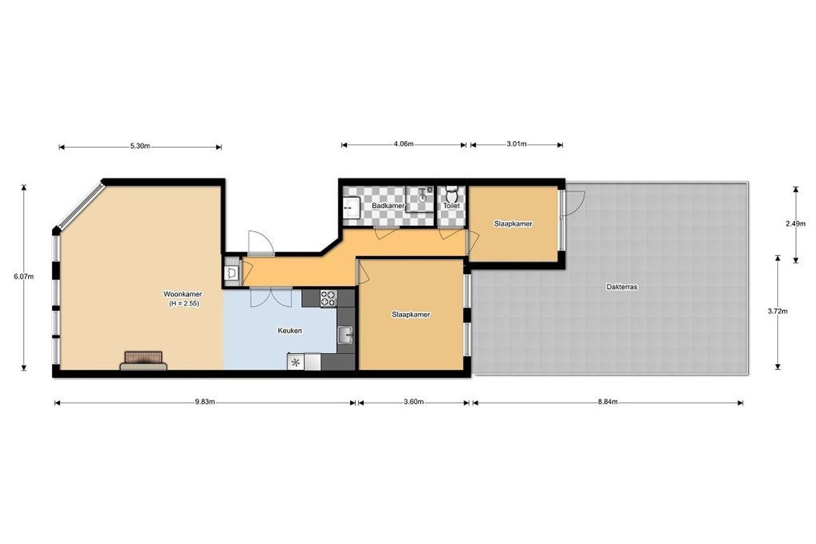
Layout:
Common, closed entrance, stairs to the first floor, apartment entrance.
Hall, cupboard with connection for washing machine, tiled bathroom with walk-in shower, thermostatic crane, rain-shower and hand-shower, washbasin and cupboard with mirror, towel radiator and mechanical ventilation.
Two spacious bedrooms, bedroom I (approx. 3.72x3.60) and bedroom II (approx. 3.01x2.49).
From the hallway double doors to the light living room (approx. 6.07x9.83/5.30) with fabulous stone mantelpiece and gas fire place and luxurious, open kitchen with appliances; stove, extraction hood, sink, dishwasher, combi-oven, fridge/freezer combination, spotlights and lots of storage space.

Details:
* Living space approx. 70 m2
* Partly furnished
* Directly available
* 2 bedrooms
* Recently renovated and in perfect condition
* Except for the bathroom, the whole apartment is equipped with gorgeous laminate flooring
* No pets allowed

Rental price € 1.250,- per month, excluding the use of gas, water, electricity, tv and internet.

……………………………………………………………………………………………

PRACHTIG, ZOJUIST GERENOVEERD 3-KAMER APPARTEMENT OP DE EERSTE ETAGE MET LUXE KEUKEN, EN BADKAMER.

DE WONING IS GELEGEN IN HET POPULAIRE STATENKWARTIER, TE MIDDEN VAN DE WINKELS EN RESTAURANTJES AAN DE FREDERIK HENDRIKLAAN EN AERT VAN DER GOESSTRAAT.
IDEAAL GELEGEN TEN OPZICHTE VAN OPENBAAR VERVOERSMOGELIJKHEDEN, SCHEVENINGEN, AMBASSADES EN INTERNATIONALE ORGANISATIES ZOALS EUROPOL, OPCW EN ICTY.

Indeling:
Gezamenlijke, afgesloten entree, binnentrap naar de eerste etage, entree appartement.
Gang, vaste kast met wasmachine-aansluiting, betegelde badkamer voorzien van ruime inloopdouche met thermostaatkraan, regendouche en handdouche, wastafel in meubel, bovenkast met spiegel, handdoekradiator en mechanische ventilatie. Twee ruime slaapkamers, slaapkamer I (ca. 3.72x3.60) en slaapkamer II (ca. 3.01x2.49)
Vanuit de gang dubbele deuren naar de heerlijk lichte woonkamer (ca. 6.07x9.83/5.30) met prachtige, natuurstenen schouw en gas open haard en luxe, open keuken voorzien van gaskookplaat, afzuigkap, rvs spoelbak, vaatwasser, combi-oven, koel-/vriescombinatie, inbouwspots en veel kastruimte.



Bijzonderheden:
* Woonoppervlakte ca. 70 m2
* Gestoffeerd
* Per direct beschikbaar
* 2 slaapkamers
* Recentelijk geheel gerenoveerd en in perfecte staat van onderhoud
* Op de badkamer na is het gehele appartement voorzien van een prachtige laminaatvloer
* Geen huisdieren toegestaan

Huurprijs € 1.250,- per maand, exclusief het gebruik van gas, water, elektriciteit. tv en internet.

Kenmerken

Huurprijs
€ 1.250 p.m. ex.
Status
Verhuurd
Oplevering
Per direct
Wijk
Statenkwartier

Bouw

Appartement
Bovenwoning, Appartement
Woonlaag
2
Soort bouw
Bestaande bouw
Bouwjaar
1906-1930
Onderhoud binnen
Uitstekend
Onderhoud buiten
Uitstekend

Oppervlakten en inhoud

Oppervlakte
70m²
Inhoud
200m³

Indeling

Kamers
3
Slaapkamers
2
Verdiepingen
1
Voorzieningen
TV-Kabel

Buitenruimte

Ligging
Aan drukke weg, In woonwijk, Vrij uitzicht

Energie

Warm water
C.V.-ketel

Locatie

Bereken route
[ { "address": "Aert van der Goesstraat 6", "zipCode": "2582 AK", "city": "Den Haag", "lat": 52.0884383, "lng": 4.2767291, "heading": 0, "pitch": 0 } ]

Interesse? Plan een bezichtiging

Geef hier uw voorkeursdata en tijd aan of stel uw vraag

Deze woning is Verhuurd

Uw bericht is naar ons verzonden. Wij nemen zo snel mogelijk contact met u op.

Er is iets mis gegaan met het versturen van het formulier.
Controleer of u alle velden (goed) heeft ingevoerd en probeer het nog een keer.

Wilt u een bezichtiging plannen?

Hoeveel is ?  


Heeft u een vraag?

Wij zijn maandag t/m vrijdag bereikbaar van 9:00 tot 17:30 uur

Bel 070 - 33 88 066