Cookies op Dekkers de Groot Makelaardij

Fijn dat je verder wilt lezen. We gebruiken cookies om de website naar behoren te laten werken, om functies voor social media te bieden en om onze website te analyseren. Dit gebeurt anoniem. Je gaat akkoord met onze cookies als je onze website blijft gebruiken. Op onze website kun je ook ons privacybeleid vinden.

Sonoystraat 17 Verhuurd

2581 VH Den Haag - Staten-/Geuzenkwartier

Omschrijving

English version below.

VOLLEDIG GERENOVEERD, GESTOFFEERD EN GEMEUBILEERD APPARTEMENT OP DE EERSTE ETAGE MET 2 RUIME SLAAPKAMERS EN BALKON AAN DE ACHTERZIJDE. VRIJ UITZICHT DOOR DE VAN LUMEYSTRAAT!

HET APPARTEMENT IS GELEGEN IN HET POPULAIRE GEUZENKWARTIER, VLAKBIJ DE WINKELS AAN DE GEZELLIGE FREDERIK HENDRIKLAAN EN WILLEM DE ZWIJGERLAAN, DIVERSE (INTERNATIONALE) SCHOLEN, AMBASSADES EN ORGANISATIES ZOALS OPCW EN EUROPOL, SPORTVERENIGINGEN EN OPENBAAR VERVOER.
OOK SCHEVENINGEN, MET STRAND, ZEE, DUINEN EN DE BOULEVARD IS BINNEN ENKELE MINUTEN TE BEREIKEN.

Indeling:
Entree op straatniveau, afgesloten portiek met brievenbussen en trapopgang naar de eerste etage, entree appartement.
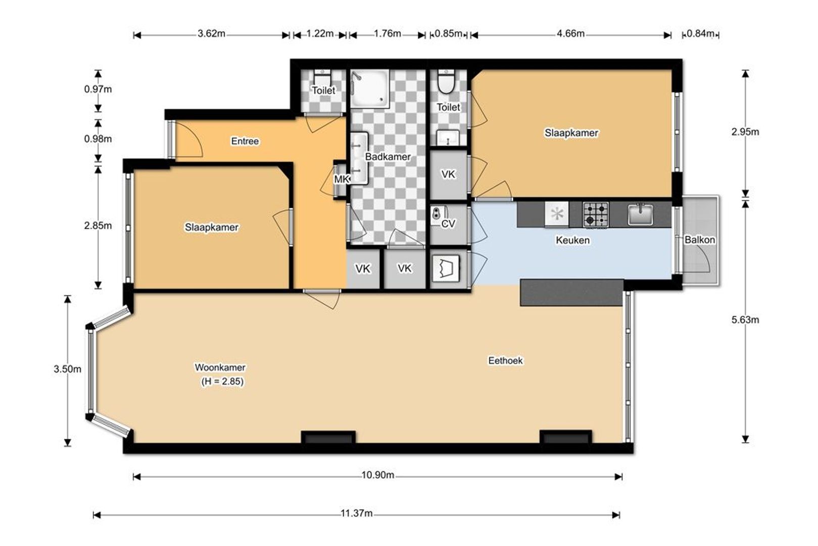
Ruime hal met meterkast, toilet en toegang tot de slaapkamer (ca. 3.62x2.85) aan de voorzijde en de betegelde badkamer voorzien van ruime inloopdouche, dubbele wastafel met badkamermeubel en spiegelkast en vaste bergkast.
Ruime en lichte woon-/eetkamer (ca. 11.37x3.50) met erker aan de voorzijde en half open keuken met eetbar, voorzien van alle apparatuur; gaskookplaat met afzuigkap, koel-/vriescombinatie, oven, magnetron, vaatwasser, rvs spoelbak, veel vaste kastruimte en toegang tot het balkon aan de achterzijde.
Hoofdslaapkamer (ca. 4.66x2.95) aan de achterzijde met vast kast en tweede toilet met wastafelmeubel en spiegelkast.

Bijzonderheden:
- Woonoppervlakte ca. 96 m2 (NEN-norm 2580)
- Zie voor de indeling van het appartement de plattegrond met maatvoering
- Volledig en smaakvol gestoffeerd en gemeubileerd
- Volledig voorzien van dubbel glas
- Geen huisdieren toegestaan
- Roken niet toegestaan
- Inclusief 1 keer maand schoonmaak van het appartement
- Beschikbaar per januari 2019

Huurprijs € 2.000,- per maand, exclusief het gebruik van gas, water, elektriciteit, tv en internet.

*****

FULLY RENOVATED AND FURNISHED APARTMENT ON THE FIRST FLOOR WITH 2 SPACIOUS BEDROOMS AND BALCONY AT THE BACKSIDE. FREE VIEW THROUGH THE VAN LUMEYSTRAAT!

THE APARTMENT IS LOCATED IN THE POPULAR GEUZENKWARTIER, NEAR THE SHOPS AT THE PLEASANT FREDERIK HENDRIKLAAN AND WILLEM DE ZWIJGERLAAN, VARIOUS (INTERNATIONAL) SCHOOLS, EMBASSIES AND ORGANIZATIONS AS OPCW AND EUROPOL, SPORT CLUBS AND PUBLIC TRANSPORT.
ALSO SCHEVENINGEN, WITH BEACH, SEA, DUNES AND THE BOULEVARD IS WITHIN A FEW MINUTES TO REACH.

Layout:
Entrance at street level, enclosed porch with mailboxes and stairs to the first floor, entrance apartment.
Spacious hall with meter cupboard, toilet and access to the bedroom (approx 3.62x2.85) at the front and the tiled bathroom with large walk-in shower, double sink with bathroom furniture and mirror cabinet and closet storage.
Spacious and bright living/dining room (approx. 11.37x3.50) with bay window at the front and half open kitchen with breakfast bar and all appliances; stove with extractor hood, fridge/freezer, oven, microwave, dishwasher, stainless steel sink, plenty of closet space and access to the balcony at the backside.
Master bedroom (approx. 4.66x2.95) at the backside with cupboard and second toilet with washbasin and mirror cabinet.

Details:
- Living space approx. 96 m2 (NEN-2580 standard)
- For the complete layout of the apartment, check the floor plans with measurement
- Fully and tastefully decorated and furnished
- Fully double glazed
- No pets allowed
- Smoking not allowed
- Including cleaning of the apartment once a month
- Available from January 2019

Rental price € 2.000,- per month, excluding the use of gas, water, electricity, tv and internet.

Kenmerken

Huurprijs
€ 2.000 p.m. ex.
Inrichting
Gemeubileerd, Gestoffeerd
Status
Verhuurd
Oplevering
Per direct
Wijk
Staten-/Geuzenkwartier

Bouw

Appartement
Bovenwoning, Appartement
Woonlaag
2
Soort bouw
Bestaande bouw
Bouwjaar
1912
Onderhoud binnen
Goed
Onderhoud buiten
Goed
Bijzonderheden
Beschermd stads- of dorpgezicht

Oppervlakten en inhoud

Oppervlakte
96m²
Inhoud
302m³

Indeling

Kamers
4
Slaapkamers
2
Verdiepingen
1
Voorzieningen
Mechanische ventilatie, TV-Kabel

Buitenruimte

Ligging
Aan rustige weg, In woonwijk, Vrij uitzicht, Beschutte ligging
Balkon
Ja

Energie

Isolatie
Dubbel glas
Warm water
C.V.-ketel

Locatie

Bereken route
[ { "address": "Sonoystraat 17", "zipCode": "2581 VH", "city": "Den Haag", "lat": 52.0904496, "lng": 4.2702137, "heading": 0, "pitch": 0 } ]

Interesse? Plan een bezichtiging

Geef hier uw voorkeursdata en tijd aan of stel uw vraag

Deze woning is Verhuurd

Uw bericht is naar ons verzonden. Wij nemen zo snel mogelijk contact met u op.

Er is iets mis gegaan met het versturen van het formulier.
Controleer of u alle velden (goed) heeft ingevoerd en probeer het nog een keer.

Wilt u een bezichtiging plannen?

Hoeveel is ?  


Heeft u een vraag?

Wij zijn maandag t/m vrijdag bereikbaar van 9:00 tot 17:30 uur

Bel 070 - 33 88 066