Cookies op Dekkers de Groot Makelaardij

Fijn dat je verder wilt lezen. We gebruiken cookies om de website naar behoren te laten werken, om functies voor social media te bieden en om onze website te analyseren. Dit gebeurt anoniem. Je gaat akkoord met onze cookies als je onze website blijft gebruiken. Op onze website kun je ook ons privacybeleid vinden.

Badhuisweg 64 Verkocht

Den Haag - Belgisch Park

Omschrijving

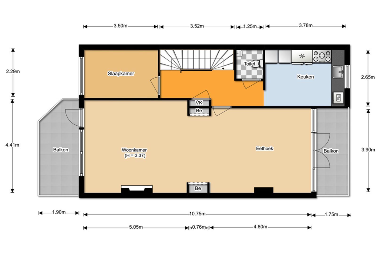
BIJZONDER RUIM EN SFEERVOL 5/6 KAMER MAISONNETTE MET 2 BADKAMERS, WOONKEUKEN, 2 ZEER ZONNIGE BALKON OP HET ZUIDWESTEN AAN DE VOORZIJDE EN 2 BALKONS AAN DE ACHTERZIJDE. GELEGEN OP EIGEN GROND. DE WONING IS GELEGEN IN SCHEVENINGEN, OP LOOPAFSTAND VAN DE ZEE, HET STRAND EN DE GEZELLIGE BOULEVARD VAN SCHEVENINGEN MET DIVERSE RESTAURANTS, WINKELS EN FESTIVITEITEN. OOK HET WESTBROEKPARK EN DE SCHEVENINGSE BOSJES, DIVERSE SPORTVERENIGINGEN, DIVERSE (INTERNATIONALE) SCHOLEN EN ORGANISATIES, OPENBAAR VERVOER EN UITVALSWEGEN BEVINDEN ZICH IN DE NABIJHEID. Indeling: Voortuin met ruimte voor het plaatsen van een fiets, klein trapje naar de voordeur, entree woning. Binnentrap naar de 1e etage: overloop met vaste kast, modern toilet met fonteintje. Ruime woon-/eetkamer (ca. 10.75x4.41/3.90) en met open haard en vaste kasten, zonnig balkon (ca. 4.41x1.90) aan de voorzijde op het zuidwesten en achterbalkon (ca. 3.90x1.75), gelegen op het noordoosten. Slaapkamer (ca. 3.50x2.29) aan de voorzijde en gezellige woonkeuken (ca. 3.78x2.65) voorzien van veel kastruimte en diverse (inbouw-)apparatuur waaronder gaskookplaat, afzuigkap, oven, vaatwasser en dubbeldeurs koel-/vriescombinatie. Trap naar de 2e etage: overloop met betegelde badkamer voorzien van douche, wastafel, tweede toilet, design radiator en wasmachine aansluiting, hoofdslaapkamer aan de voorzijde (ca. 4.75x5.97) over de gehele breedte van de woning, met toegang tot balkon (ca. 1.48x0.72), gelegen op het zuidwesten, vaste kastenwand en tweede badkamer (ca. 4.37x1.87) voorzien van ligbad, separate douchecabine, dubbele wastafel in meubel en design radiator. Slaapkamer aan de achterzijde (ca. 3.87x3.85) met toegang tot balkon aan de achterzijde (ca. 3.85x1.66), gelegen op het noordoosten, achterzijkamer (ca. 2.82x2.74). Bijzonderheden: - Gelegen op eigen grond - Het woonoppervlakte bedraagt ca. 153 m2 (NEN-norm 2580) - Zie voor de indeling van de woning de plattegrond met maatvoering - Recent opgerichte VvE, bijdrage € 100,- per maand, 1/2e aandeel in de gemeenschap - Verwarming en warm water middels cv-ketel Nefit, bouwjaar 2010 - De woning is voorzien van een gezellige woonkeuken, 2 badkamers en 4 balkons - Rijks Beschermd Stadsgezicht - Oplevering in overleg - Vanwege het bouwjaar worden standaard in de koopovereenkomst de ouderdoms- en materialenclausule opgenomen - Verkoopvoorwaarden Dekkers de Groot Makelaardij van toepassing Interesse in dit huis? Schakel direct uw eigen NVM-aankoopmakelaar in. Uw NVM-aankoopmakelaar komt op voor uw belang en bespaart u tijd, geld en zorgen.

Kenmerken

Vraagprijs
€ 450.000 k.k.
Status
Verkocht
Wijk
Belgisch Park

Bouw

Oppervlakten en inhoud

Oppervlakte
150m²

Indeling

Slaapkamers
4

Locatie

Bereken route
[ { "address": "Badhuisweg 64", "zipCode": "", "city": "Den Haag", "lat": 52.1092548, "lng": 4.2892331, "heading": 0, "pitch": 0 } ]

Interesse? Plan een bezichtiging

Geef hier uw voorkeursdata en tijd aan of stel uw vraag

Deze woning is Verkocht

Uw bericht is naar ons verzonden. Wij nemen zo snel mogelijk contact met u op.

Er is iets mis gegaan met het versturen van het formulier.
Controleer of u alle velden (goed) heeft ingevoerd en probeer het nog een keer.

Wilt u een bezichtiging plannen?

Hoeveel is ?  


Heeft u een vraag?

Wij zijn maandag t/m vrijdag bereikbaar van 9:00 tot 17:30 uur

Bel 070 - 33 88 066