Cookies op Dekkers de Groot Makelaardij

Fijn dat je verder wilt lezen. We gebruiken cookies om de website naar behoren te laten werken, om functies voor social media te bieden en om onze website te analyseren. Dit gebeurt anoniem. Je gaat akkoord met onze cookies als je onze website blijft gebruiken. Op onze website kun je ook ons privacybeleid vinden.

Hendrik Zwaardecroonstraat 182 Verkocht

2593 XW Den Haag - Bezuidenhout-Oost

Omschrijving

English version below
RUIM 3-KAMER APPARTEMENT OP DE TWEEDE (TOP!) ETAGE MET 2 SLAAPKAMERS EN ROYAAL BALKON AAN DE ACHTERZIJDE. GELEGEN OP EIGEN GROND.

HET APPARTEMENT IS GELEGEN IN DE GEWILDE WIJK BEZUIDENHOUT, NABIJ DE WINKELS, RESTAURANTJES EN KOFFIEZAAKJES AAN DE GEZELLIGE THERESIASTRAAT, HET TREINSTATION, HET OPENBAAR VERVOER EN DE UITVALSWEGEN.

Indeling:
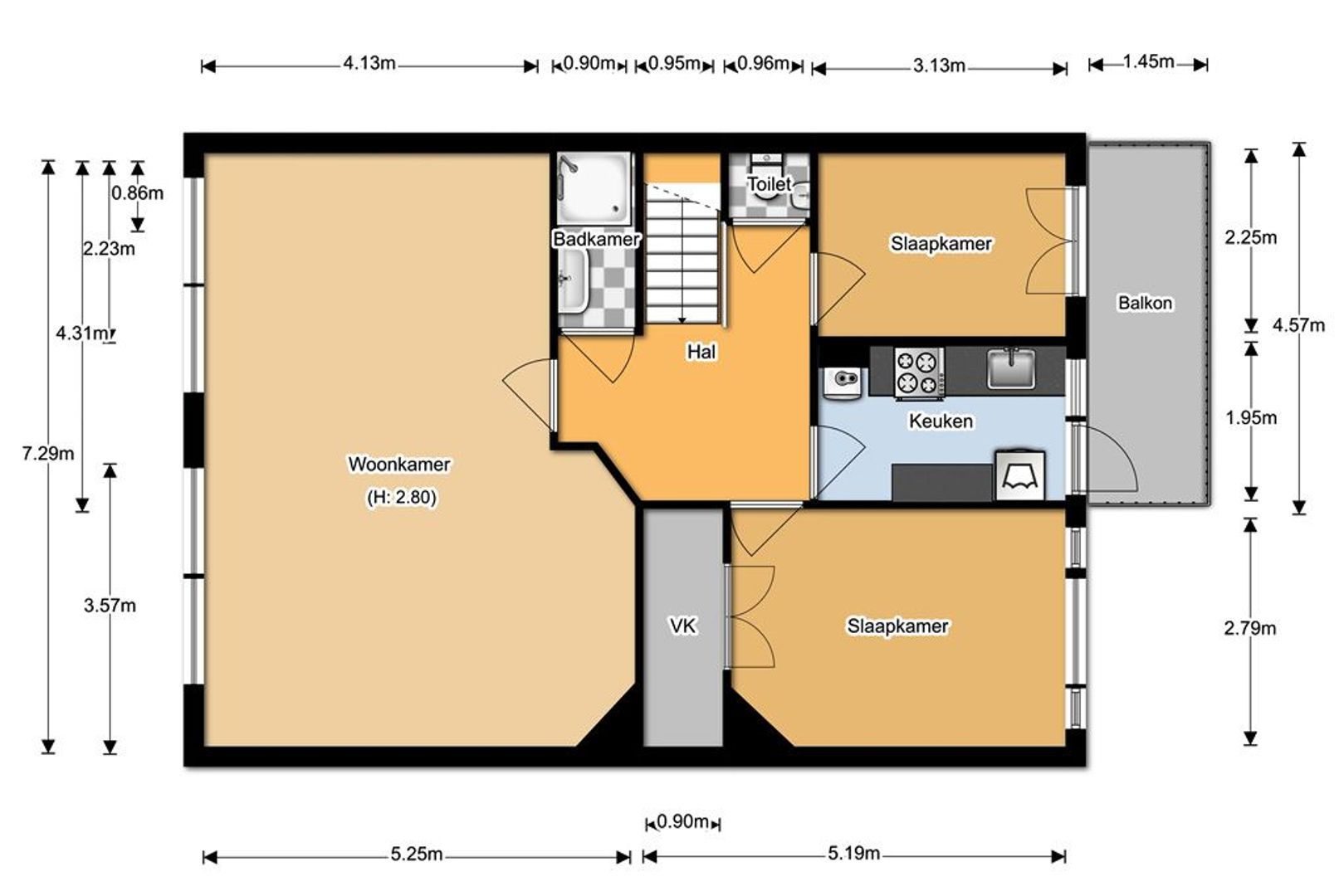
Portiekopgang naar de 1e etage, entree appartement, hal (ca. 2.40x2.20) met meterkast en bergruimte onder de trap, binnentrap naar de 2e etage.

Woonetage: ruime overloop met toegang tot alle vertrekken. Royale woon-/eetkamer (ca. 7.29x5.25/4.13) over de gehele breedte van de woning.
Twee ruime slaapkamers aan de achterzijde; hoofdslaapkamer (ca. 5.19x2.79) met inloopkast en 2e slaapkamer (ca. 3.13x2.25) met toegang tot het balkon (ca. 4.57x1.45), gelegen op het noordoosten.
Tussengelegen keuken (ca. 3.13x1.95) voorzien van gaskookplaat, afzuigkap, oven, rvs spoelbak, vaatwasser, losse koel-/vriescombinatie, opstelplaats cv-ketel, wasmachine-aansluiting, inbouwverlichting, veel kastruimte en toegang tot het balkon.
Betegelde badkamer (ca. 2.23x0.90) voorzien van douchecabine met thermostaatkraan, wastafelmeubel en bovenkast met spiegel en separaat, betegeld toilet met fonteintje.

Bijzonderheden:
- Gelegen op eigen grond
- Het woonoppervlakte bedraagt ca. 82 m2 (NEN-2580 norm)
- Zie voor de indeling van het appartement de plattegrond met maatvoering
- Actieve VvE, bijdrage € 111,34 per maand, 1/18e aandeel in de gemeenschap
- Verwarming en warm water middels cv-combi ketel, bouwjaar 2006
- Volledig voorzien van dubbel glas
- Ruim balkon (ca. 4.57x1.45) aan de achterzijde
- Bouwjaar 1923
- Vanwege het bouwjaar worden standaard in de koopovereenkomst de ouderdoms- en materialenclausule opgenomen
- Verkoopvoorwaarden Dekkers de Groot Makelaardij van toepassing

Interesse in dit huis? Schakel direct uw eigen NVM-aankoopmakelaar in.
Uw NVM-aankoopmakelaar komt op voor uw belang en bespaart u tijd, geld en zorgen.

***

SPACIOUS 3-ROOM APARTMENT ON THE SECOND (TOP!) FLOOR WITH 2 BEDROOMS AND BALCONY AT THE BACKSIDE. FREEHOLD LAND.

THE APARTMENT IS LOCATED IN THE POPULAR BEZUIDENHOUT, NEAR THE SHOPS, RESTAURANTS AND COFFEE BARS ON THE PLEASANT THERESIASTRAAT, THE TRAIN STATION, PUBLIC TRANSPORT AND THE EXIT ROADS.


Layout:
Stairs porch to the first floor, entrance apartement, hall (approx. 2.40x2.20) with meter cupboard and storage space under the stairs, internal stairs to the 2nd floor.

Living floor: spacious landing with access to all rooms. Spacious living/dining room (approx. 7.29x5.25/4.13) over the entire width of the house.
Two spacious bedrooms at the rear; master bedroom (approx. 5.19x2.79) with walk-in closet and 2nd bedroom (approx. 3.13x2.25) with access to the balcony (approx. 4.57x1.45), facing North-East.
Intermediate kitchen (approx. 3.13x1.95) with stove, extraction hood, oven, stainless steel sink, dishwasher, separate fridge/freezer combination, central heating boiler, washing machine connection, recessed lighting, plenty of cupboard space and access to the balcony.
Tiled bathroom (approx. 2.23x0.90) with shower cabin with thermostat crane, wash basin and upper cupboard with mirror and separate, tiled toilet with hand basin.

Details:
- Freehold land
- Living space approx. 82 m2 (NEN-2580 standard)
- For the complete layout of the apartment check the floor plans with measurements
- Active Home Owners Association, contribution € 111,34 per month
- Hot water and heating through central heating boiler, year of building 2006
- Fully double glazed
- Spacious balcony (approx. 4.57x1.45) at the backside
- Year of building 1923
- Age clause and materials clause will be included in the deed
- Sales conditions Dekkers de Groot Makelaardij applicable

Interested in this property? Bring your own NVM-purchase agent.
Your NVM-purchase agent comes up for your interest and saves you time, money and worries.

Kenmerken

Vraagprijs
€ 225.000 k.k.
Status
Verkocht
Oplevering
In overleg
Wijk
Bezuidenhout-Oost

Bouw

Appartement
Bovenwoning, Appartement
Woonlaag
3
Soort bouw
Bestaande bouw
Bouwjaar
1923

Oppervlakten en inhoud

Oppervlakte
82m²
Inhoud
287m³

Indeling

Kamers
3
Slaapkamers
2
Verdiepingen
1
Voorzieningen
Mechanische ventilatie, TV-Kabel

Buitenruimte

Ligging
Aan rustige weg, In woonwijk, Beschutte ligging
Balkon
Ja

Energie

Energielabel
D
Isolatie
Dubbel glas
Warm water
C.V.-ketel
Verwarming
C.V.-ketel
Ketel
(2006, Combi-ketel, Eigendom)

Locatie

Bereken route
[ { "address": "Hendrik Zwaardecroonstraat 182", "zipCode": "2593 XW", "city": "Den Haag", "lat": 52.0835176, "lng": 4.3423462, "heading": 0, "pitch": 0 } ]

Interesse? Plan een bezichtiging

Geef hier uw voorkeursdata en tijd aan of stel uw vraag

Deze woning is Verkocht

Uw bericht is naar ons verzonden. Wij nemen zo snel mogelijk contact met u op.

Er is iets mis gegaan met het versturen van het formulier.
Controleer of u alle velden (goed) heeft ingevoerd en probeer het nog een keer.

Wilt u een bezichtiging plannen?

Hoeveel is ?  


Heeft u een vraag?

Wij zijn maandag t/m vrijdag bereikbaar van 9:00 tot 17:30 uur

Bel 070 - 33 88 066