Cookies op Dekkers de Groot Makelaardij

Fijn dat je verder wilt lezen. We gebruiken cookies om de website naar behoren te laten werken, om functies voor social media te bieden en om onze website te analyseren. Dit gebeurt anoniem. Je gaat akkoord met onze cookies als je onze website blijft gebruiken. Op onze website kun je ook ons privacybeleid vinden.

Rogstraat 11 Verkocht

2584 XA Den Haag - Visserijbuurt

Omschrijving

GELEGEN IN VISSERIJBUURT (TUSSEN OUD SCHEVENINGEN EN WESTBROEKPARK), EEN UNIEKE EENGEZINSWONING AAN EEN AUTOLUWE ZIJSTRAAT VAN DE GEZELLIGE BADHUISSTRAAT. IN DE NABIJHEID VAN EEN RUIM WINKELAANBOD, ALLE VOORZIENINGEN IN DE BUURT EN MET DE BOULEVARD EN HET STRAND OP LOOPAFSTAND.

Indeling:
Begane grond: ruime hal met meterkast, garderobekast en toilet met fonteintje.
Lichte woonkamer en keuken voorzien van alle benodigde inbouwapparatuur. Toegang tot de tuin (ca. 4.53x3.39), gelegen op het zuidwesten met berging (ca. 2.33x1.48 en 2.48 hoog).

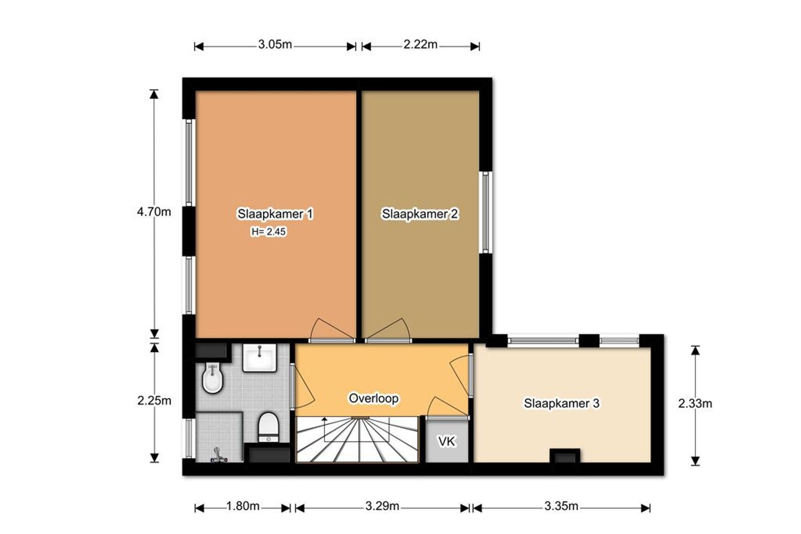
1e etage: overloop met vaste kast, 3 slaapkamers (resp. ca. 4.70x3.05, 4.70x2.22 en 3.35x2.33) en badkamer voorzien van douchecabine met regendouche en handdouche, tweede toilet, urinoir, wastafel en handdoekradiator.

2e etage: overloop met vaste kast, 2 slaapkamers (resp. ca. 4.71x4.06 en 2.30x1.96).

Bijzonderheden:
- Gelegen op erfpachtgrond, waarvan de canon en beheerkosten eeuwigdurend zijn afgekocht
- Het woonoppervlakte bedraagt ca. 108 m2
- Zie voor de indeling van de woning de plattegronden met maatvoering
- Verwarming en warm water middels cv-combi ketel Remeha Calenta, bouwjaar 2018
- Tevens zijn alle verdiepingen voorzien van vloerverwarming
- Nieuwe elektra groepenkast
- Volledig voorzien van dubbel glas
- Parkeervergunning voor een auto kost ca. € 36,60 per jaar
- Bouwjaar 1989
- Vanwege het bouwjaar worden standaard in de koopovereenkomst de ouderdoms- en materialenclausule opgenomen
- Verkoopvoorwaarden Dekkers de Groot Makelaardij van toepassing

Interesse in dit huis? Schakel direct uw eigen NVM-aankoopmakelaar in.
Uw NVM-aankoopmakelaar komt op voor uw belang en bespaart u tijd, geld en zorgen.


Bovenstaande informatie is door ons met de hoogst nodige zorgvuldigheid samengesteld. Door Dekkers de Groot Makelaardij wordt echter geen enkele aansprakelijkheid aanvaard voor enige onvolledigheid, onjuistheid of anderszins, dan wel de gevolgen daarvan. Alle opgegeven maten en oppervlakten zijn indicatief. De woning is gemeten met gebruikmaking van de Meetinstructie, die is gebaseerd op de normen zoals vastgelegd in NEN-2580. De Meetinstructie is bedoeld om een meer eenduidige manier van meten toe te passen voor het geven van een indicatie van gebruiksoppervlakte. De Meetinstructie sluit verschillen in meetuitkomsten niet volledig uit, door bijvoorbeeld interpretatieverschillen, afrondingen of beperkingen bij het uitvoeren van de meting. Hoewel wij de woning zorgvuldig hebben opgemeten, wordt noch door Dekkers de Groot Makelaardij b.v., noch door de verkoper enige aansprakelijkheid aanvaard voor afwijkingen in de opgegeven maten. Koper wordt in de gelegenheid gesteld om de opgegeven maten te (laten) controleren.

Kenmerken

Vraagprijs
€ 415.000 k.k.
Status
Verkocht
Oplevering
In overleg
Wijk
Visserijbuurt

Bouw

Woonhuis
Eengezinswoning, Tussenwoning
Soort bouw
Bestaande bouw
Bouwjaar
1989
Onderhoud binnen
Goed
Onderhoud buiten
Goed
Bijzonderheden
Beschermd stads- of dorpgezicht

Oppervlakten en inhoud

Oppervlakte
108m²
Perceel
68m²
Inhoud
300m³

Indeling

Kamers
6
Slaapkamers
5
Verdiepingen
3
Voorzieningen
TV-Kabel

Buitenruimte

Ligging
Aan rustige weg, In woonwijk, Beschutte ligging
Tuin
Achtertuin
Achtertuin
Zuidwest, 15m², 339×453cm
Schuur
Inpandig

Energie

Energielabel
C
Isolatie
Dubbel glas
Warm water
C.V.-ketel
Verwarming
C.V.-ketel, Vloerverwarming geheel
Ketel
Remeha Calenta (2018, Combi-ketel, Eigendom)

Locatie

Bereken route
[ { "address": "Rogstraat 11", "zipCode": "2584 XA", "city": "Den Haag", "lat": 52.1032987, "lng": 4.2800487, "heading": 0, "pitch": 0 } ]

Interesse? Plan een bezichtiging

Geef hier uw voorkeursdata en tijd aan of stel uw vraag

Deze woning is Verkocht

Uw bericht is naar ons verzonden. Wij nemen zo snel mogelijk contact met u op.

Er is iets mis gegaan met het versturen van het formulier.
Controleer of u alle velden (goed) heeft ingevoerd en probeer het nog een keer.

Wilt u een bezichtiging plannen?

Hoeveel is ?  


Heeft u een vraag?

Wij zijn maandag t/m vrijdag bereikbaar van 9:00 tot 17:30 uur

Bel 070 - 33 88 066