Cookies op Dekkers de Groot Makelaardij

Fijn dat je verder wilt lezen. We gebruiken cookies om de website naar behoren te laten werken, om functies voor social media te bieden en om onze website te analyseren. Dit gebeurt anoniem. Je gaat akkoord met onze cookies als je onze website blijft gebruiken. Op onze website kun je ook ons privacybeleid vinden.

Ivanovschouw 11 Verkocht

2726 KN Zoetermeer - Buytenwegh de Leyens

Omschrijving

GOED ONDERHOUDEN 4 KAMER EENGEZINSWONING MET 3 RUIME SLAAPKAMERS, VOORTUIN MET (FIETSEN-)BERGING, ZONNIGE ACHTERTUIN ÉN DAKTERRAS, GELEGEN OP EIGEN GROND.

DE WONING IS GELEGEN IN DE GELIEFDE WOONWIJK ‘’DE LEYENS’’, OP LOOPAFSTAND VAN HET STADSHART EN WINKELCENTRUM DE LEYENS EN NABIJ DIVERSE SCHOLEN, STADSTHEATER EN BIOSCOOP, HET WIJKPARK EN RECREATIEGEBIED NOORD-AA, HET OPENBAAR VERVOER EN DE UITVALSWEGEN.

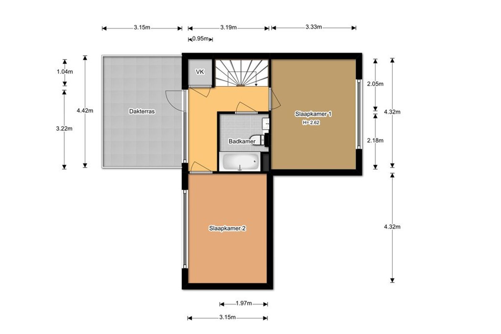
Indeling:
Voortuin met (fietsen-)berging, entree woning, hal met meterkast en keurig toilet. Lichte en ruime woon-/eetkamer met open haard en moderne open keuken voorzien van kookplaat, afzuigkap, combi-oven/magnetron, koelkast, vriezer en vaatwasser.
Heerlijk zonnige achtertuin (ca. 7.64x4.32), gelegen op het zuidwesten.

1e etage: overloop met vaste kast en toegang tot het dakterras (ca. 4.42x3.15), gelegen op het zuidwesten.
Slaapkamer 1 (ca. 4.32x3.33), slaapkamer 2 (ca. 4.32x3.15) en betegelde badkamer (ca. 2.18x1.97) voorzien van ligbad met douchecombinatie, tweede toilet, wastafel met meubel en bovenkast, handdoekradiator en wasmachine-aansluiting.

2e etage: ruime zolderetage met 3e slaapkamer (ca. 4.30x3.51) en grote bergruimte (ca. 4.31x1.70) met opstelplaats cv-ketel.

Bijzonderheden:
- Gelegen op eigen grond
- Het woonoppervlakte bedraagt ca. 114 m2 (NEN-norm 2580)
- Zie voor de indeling van de woning de plattegronden met maatvoering
- Verwarming en warm water middels cv-ketel AWB HR, bouwjaar 2011 en jaarlijks onderhouden
- De woning is volledig voorzien van dubbel glas
- Zonnige achtertuin van ca. 33 m2 én dakterras van ca. 14 m2
- Het schilderwerk aan de buitenzijde is uitgevoerd in 2016
- Bouwjaar 1978
- Oplevering in overleg
- Vanwege het bouwjaar worden standaard in de koopovereenkomst de ouderdoms- en materialenclausule opgenomen
- Verkoopvoorwaarden Dekkers de Groot Makelaardij van toepassing


De Meetinstructie is gebaseerd op de NEN2580. De Meetinstructie is bedoeld om een meer eenduidige manier van meten toe te passen voor het geven van een indicatie van de gebruiksoppervlakte. De Meetinstructie sluit verschillen in meetuitkomsten niet volledig uit, door bijvoorbeeld interpretatieverschillen, afrondingen of beperkingen bij het uitvoeren van de meting.
Hoewel wij de woning zorgvuldig hebben opgemeten, wordt noch door Dekkers de Groot Makelaardij b.v., noch door de verkoper enige aansprakelijkheid aanvaard voor afwijkingen in de opgegeven maten. Koper wordt in de gelegenheid gesteld om de opgegeven maten te (laten) controleren.

Kenmerken

Vraagprijs
€ 269.500 k.k.
Status
Verkocht
Oplevering
In overleg
Wijk
Buytenwegh de Leyens

Bouw

Woonhuis
Eengezinswoning, Tussenwoning
Soort bouw
Bestaande bouw
Bouwjaar
1978
Onderhoud binnen
Goed
Onderhoud buiten
Goed

Oppervlakten en inhoud

Oppervlakte
114m²
Perceel
118m²
Inhoud
335m³

Indeling

Kamers
4
Slaapkamers
3
Verdiepingen
3
Voorzieningen
Mechanische ventilatie, TV-Kabel, Rookkanaal

Buitenruimte

Ligging
Aan rustige weg, In woonwijk, Beschutte ligging
Tuin
Achtertuin, Voortuin
Achtertuin
Zuidwest, 33m², 432×764cm
Schuur
Vrijstaand steen

Energie

Energielabel
C
Isolatie
Dakisolatie, Dubbel glas
Warm water
C.V.-ketel
Verwarming
C.V.-ketel
Ketel
AWB (2011, Combi-ketel, Eigendom)

Locatie

Bereken route
[ { "address": "Ivanovschouw 11", "zipCode": "2726 KN", "city": "Zoetermeer", "lat": 52.0672884, "lng": 4.4948444, "heading": 0, "pitch": 0 } ]

Interesse? Plan een bezichtiging

Geef hier uw voorkeursdata en tijd aan of stel uw vraag

Deze woning is Verkocht

Uw bericht is naar ons verzonden. Wij nemen zo snel mogelijk contact met u op.

Er is iets mis gegaan met het versturen van het formulier.
Controleer of u alle velden (goed) heeft ingevoerd en probeer het nog een keer.

Wilt u een bezichtiging plannen?

Hoeveel is ?  


Heeft u een vraag?

Wij zijn maandag t/m vrijdag bereikbaar van 9:00 tot 17:30 uur

Bel 070 - 33 88 066