Cookies op Dekkers de Groot Makelaardij

Fijn dat je verder wilt lezen. We gebruiken cookies om de website naar behoren te laten werken, om functies voor social media te bieden en om onze website te analyseren. Dit gebeurt anoniem. Je gaat akkoord met onze cookies als je onze website blijft gebruiken. Op onze website kun je ook ons privacybeleid vinden.

Mispelstraat 17 Verkocht

2564 TP Den Haag - Vruchtenbuurt

Omschrijving

IN EEN VAN DE MEEST KINDVRIENDELIJKE STRATEN (BREED TROTTOIR MET GROEN VOORZIENING) VAN DE POPULAIRE VRUCHTENBUURT GELEGEN TUSSENHERENHUIS (141M2) MET UITBOUW, 5 SLAAPKAMERS EN RIANTE ACHTERTUIN. HEERLIJKE LIGGING IN RUSTIGE STRAAT,TUSSEN DE MELOEN- EN TOMATENSTRAAT, MET WEINIG DOORGAAND VERKEER.

Dit familiehuis is op loopafstand gelegen van de winkels aan de Vlierboomstraat en het winkelcentrum aan de de Savornin Lohmanplein, tevens op slechts enkele loop/fiets minuten van de duinen, strand en zee. Veel recreatieve mogelijkheden op steenworp afstand in de Bosjes van Pex: voetbal, tennis, hockey, cricket, paardrijden, korfbal, etc.

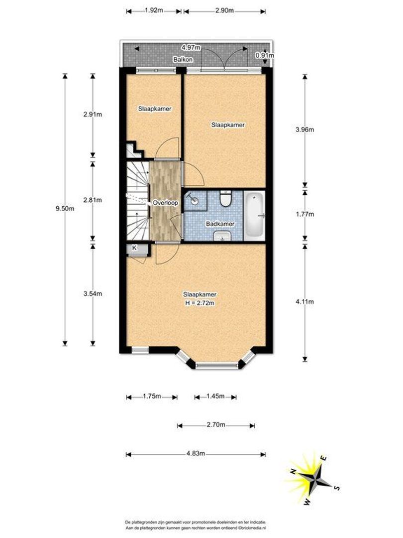
Indeling:
entree, vestibule, elektra installatie met 8 groepen en 2x aardlekschakelaar, fraaie en karakteristieke granitovloer, keurig en modern toilet met wasfontein, entree middels glas in roede deur tot de doorgebroken woon/eetkamer 1302x 345 deels 290, met parketvloer, aan de achterzijde bevindt zich over de volle breedte (4.83 meter) de uitbouw / serre, doordat deze aanbouw over de volle breedte gelegen is heeft de keuken een open karakter gekregen. De keuken is modern en voorzien van inbouwapparatuur zoals: 6 pitsgasfornuis, RVS afzuigkap, oven, magnetron en vaatwasmachine. Aanrechtblad is van natuursteen.

Vanwege de diepte van deze fraai aangelegde tuin 1346x518, met verschillende groene borders, kunt u extra lang van de zon genieten, achterin de tuin bevindt zich nog een royale vrijstaande houten schuur voorzien van elektra.

Trap naar 1e etage, overloop, op deze verdieping bevindt zich een drietal slaapkamers. De 2 aan de achterzijde gelegen meten: 291x192 en 396x290, laatste genoemde kamer heeft toegang tot het balkon. De hoofdslaapkamer bevindt zich aan de voorzijde en is over de volle breedte gelegen 411x483. Tussen de slaapkamers in bevindt zich de keurige en moderne badkamer 177x290 welke is voorzien van een wastafelmeubel, hoek douchecabine, ligbad en 2e toilet.

Trap naar 2e etage: overloop, met aan de achterzijde flinke berging alwaar opstelplaats wasmachine en droger maar ook CV combi Ketel, REMEHA AVANTA 2014. Achterslaapkamer 371x281 en ruime voorslaapkamer 330x454. Tenslotte veel bergruimte in de bovengelegen vliering.

Bijzonderheden:
- aanvaarding in overleg
- elektra 8 groepen en 2 aardlekschakelaars
- cv combi ketel Remeha Avanta 2014
- enkel glas
- woonoppervlakte volgens NEN 2580 141m2, perceeloppervlakte 135m2
- energielabel aanwezig

Vraagprijs € 525.000,00 kosten koper

Kenmerken

Vraagprijs
€ 525.000 k.k.
Status
Verkocht
Oplevering
In overleg
Wijk
Vruchtenbuurt

Bouw

Woonhuis
Eengezinswoning, Tussenwoning
Soort bouw
Bestaande bouw
Bouwjaar
1931-1944
Onderhoud binnen
Goed
Onderhoud buiten
Goed

Oppervlakten en inhoud

Oppervlakte
141m²
Perceel
135m²
Inhoud
508m³

Indeling

Kamers
7
Slaapkamers
5
Verdiepingen
3
Voorzieningen
TV-Kabel, Rookkanaal

Buitenruimte

Ligging
Aan rustige weg, In woonwijk
Tuin
Achtertuin
Achtertuin
Noordoost, 70m², 518×1346cm
Schuur
Vrijstaand hout

Energie

Energielabel
F
Warm water
C.V.-ketel

Locatie

Bereken route
[ { "address": "Mispelstraat 17", "zipCode": "2564 TP", "city": "Den Haag", "lat": 52.069013, "lng": 4.2551277, "heading": 0, "pitch": 0 } ]

Interesse? Plan een bezichtiging

Geef hier uw voorkeursdata en tijd aan of stel uw vraag

Deze woning is Verkocht

Uw bericht is naar ons verzonden. Wij nemen zo snel mogelijk contact met u op.

Er is iets mis gegaan met het versturen van het formulier.
Controleer of u alle velden (goed) heeft ingevoerd en probeer het nog een keer.

Wilt u een bezichtiging plannen?

Hoeveel is ?  


Heeft u een vraag?

Wij zijn maandag t/m vrijdag bereikbaar van 9:00 tot 17:30 uur

Bel 070 - 33 88 066